Встреча за 48 ч · Материалы под бюджет = без доплат · Проект, по которому строят

Бронь зачтём. Не пойдём дальше — вернём 100%

Выберите глубину. Качество неизменно.

ИСТОРИИ ДОМА 

Артур, КВАРТИРА ПОД АРЕНДУ

Пример реализации по дизайну "Авторский"

Задача: Качественно, быстро, квартира под аренду с хорошим чеком
Периметр: Авторский проект интерьера (планировка, цвета, мебель, свет), организация, управление, надзор и обеспечение соответствия руководителем проектного офиса. Все материалы, логистика и технологии, отделочные работы, изготовление мебели, техника, декор.

ВПЕЧАТЛЕНИЯ

Из интервью Артура по завершении проекта: «После покупки квартиры я понимал: нужен не просто ремонт, а квартира, которая будет хорошо сдаваться. Мне было важно, чтобы дизайнер услышал мои идеи и сделал их частью проекта. Руководитель проектного офиса взял всё на себя — от доставки материалов до координации мастеров и надзора.
Но кое-что пошло не по плану: когда я зашёл в готовую квартиру, понял - аренды не будет, я буду здесь жить!»

снято перед сдачей, звук 🔊 

65 м²

Исходно: white box от застройщика.
Руководитель проекта: Дмитрий
Дизайнер: Лариса
Отделка: стены под покраску; потолки — ГКЛ / натяжной; пол: ПВХ-плитка и керамогранит с тёплыми полами; воздухообмен и кондиционирование; санузел — керамогранит, сантехника; двери 2400; освещение; ниши и панели из ГКЛ с подсветкой, встроенные шкафы; кухня — встроенная, подсветка; шторы.


4 месяца

Проектирование 1,2 мес.
Отделка и мебель 3 мес.
Изменений по ТЗ — 2 шт., переделок — 0, обращений по гарантии — 0.
Ускорение: ранние заказы мебели/дверей, без перепроектирования.


14 млн. ₽

Дизайн-проект 0,18 млн. ₽
Материалы 4,9 млн. ₽
Работы 4,4 млн. ₽
Мебель и быт. техника 4,5 млн. ₽
Отклонение от бюджета (экономия) -12%


ЖАННА, МОСКОВСКАЯ КВАРТИРА

Пример реализации по дизайну "Авторский + Внутренний дизайн мебели"

Задача: Квартира для частых приездов в Москву, максимально продуманно и индивидуально, максимально по функционалу.
Периметр: Авторский проект + проектирование мебели «изнутри», функционал в деталях. Управление, надзор и обеспечение соответствия руководителем проектного офиса, организация. Все материалы, логистика и технологии, отделочные работы, изготовление мебели, техника, декор.

ВПЕЧАТЛЕНИЯ

Из интервью Жанны по завершении проекта: «Я живу на Дальнем Востоке, в Москву прилетаю несколько раз в год. До этого у меня были два сложных ремонта, и я не знала, как контролировать все процессы на расстоянии. В офисе встретила руководителя проектного бюро — спокойного, точного, ответственного. Мы сделали дизайн, но главное — мебель изнутри: пантографы, интегрированные гладильные доски, многоуровневые обувницы, выдвижные столешницы. Открываешь шкаф — всё, как задумывала именно я.»

снято перед сдачей, звук 🔊

68м²

Исходно: white box от застройщика.
Руководитель проекта: Сергей
Дизайнер: Лариса
Отделка: стены - геометрия под покраску; потолки ГКЛ / натяжной / освещение; воздухообмен и кондиционирование; пол — инженерная доска и керамогранит с тёплыми полами; санузел и ванная — керамогранит, сантехника; проработанная мебель: кухня, порталы и шкафы из МДФ с фрезеровкой и эмалью, направляющие/системы; шторы.


10 месяцев

Проектирование 1,3 мес.
Отделка и мебель 9 мес.
Изменений по ТЗ — 8 шт., переделок — 1, обращений по гарантии — 0.
Ускорение: ранний старт до окончания дизайна, параллельное производство мебели.


22 млн.₽

Дизайн-проект 0,3 млн.₽
Материалы 7,8 млн.₽
Работы 6,9 млн.₽
Мебель и быт. техника 7,0 млн.₽
Отклонение от бюджета (превышение) +3%


ИВАН, КВАРТИРА НА ПЕРСПЕКТИВУ

Пример реализации по дизайну "Авторский + Режиссура на объекте"

Задача: Квартира для переезда через неопределённое время, натурально, качественно и индивидуально.
Периметр работ: Авторский проект + проектирование мебели «изнутри», функционал в деталях + очное развитие идей дизайнером. Управление, надзор и обеспечение соответствия руководителем проектного офиса. Все материалы, логистика и технологии, отделочные работы, изготовление мебели, техника, декор.

ВПЕЧАТЛЕНИЯ

Из интервью Ивана по завершении проекта: «Я сразу сказал: принимать отделку буду только с технадзором - важны продуманность и качество. Взял пакет, где дизайнер сам ведёт надзор. Руководитель проектного офиса управлял стройкой, а дизайнер приезжал и дорабатывал нюансы на месте. Например, решили непростой вопрос с оттенками натурального шпона: панели разные по тону, но дизайнер придумала раскладку с металлическими вставками, и стена заиграла. Получился интерьер на долгую перспективу — сильный, честный, без компромиссов.»

снято перед сдачей, звук 🔊

87 м²

Исходно: white box от застройщика
Руководитель проекта: Дмитрий
Дизайнер: Ирина
Отделка: стены - геометрия под покраску, панели шпон, электрика/свет/водоснабжение, потолки ГКЛ с покраской; воздухообмен и кондиционирование; пол: инженерная "ёлка" + керамогранит с тёплыми полами, двери эмаль 2400, санузлы под ключ, встроенная мебель МДФ/шпон/эмаль; скрин-роллеры.


11 месяцев

Проектирование 1,9 мес.
Отделка и мебель 9,7 мес.
Изменений по ТЗ — 4 шт., переделок — 0, обращений по гарантии — 1 (устранение не гарантийного запроса).
Ускорение: ранний старт до окончания дизайна, параллельное производство мебели.


26 млн. ₽

Дизайн-проект 0,8 млн. ₽
Материалы 8,7 млн. ₽
Работы 8,6 млн. ₽
Мебель и быт. техника 7,9 млн. ₽
Отклонение от бюджета (экономия) -8%


Ответ за 2–5 минут: ориентир бюджета по вашей площади именно в вашем ЖК

Гид по дизайну и ремонту— 24/7 отвечает здесь и сейчас про уровни отделки, технологии, уровни стоимости материалов и работ, подводные камни и предстоящие шаги в любом ремонте

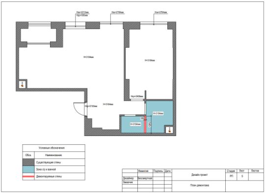
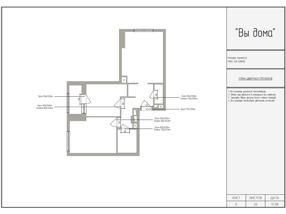
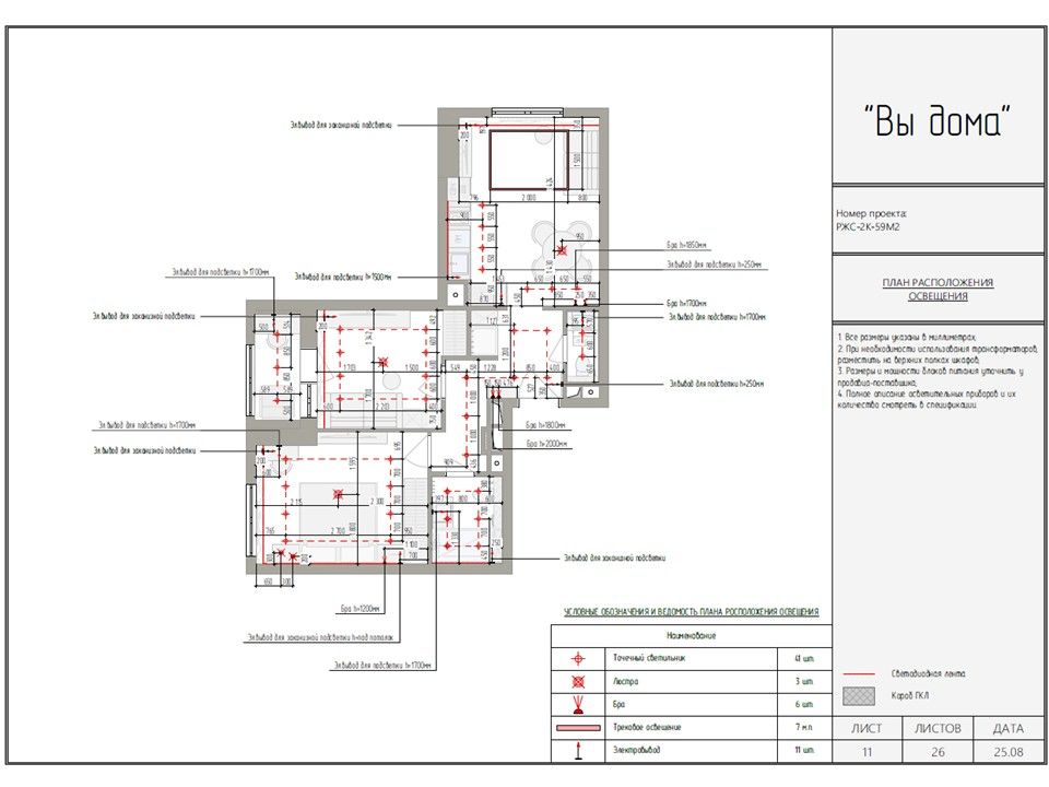
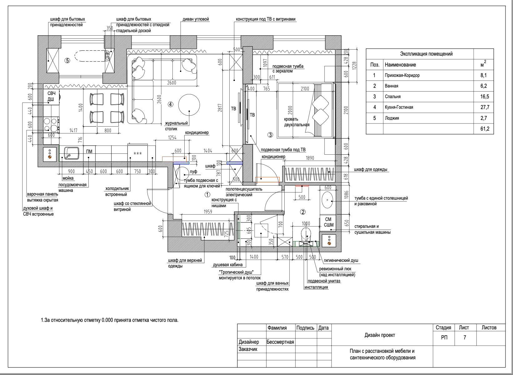
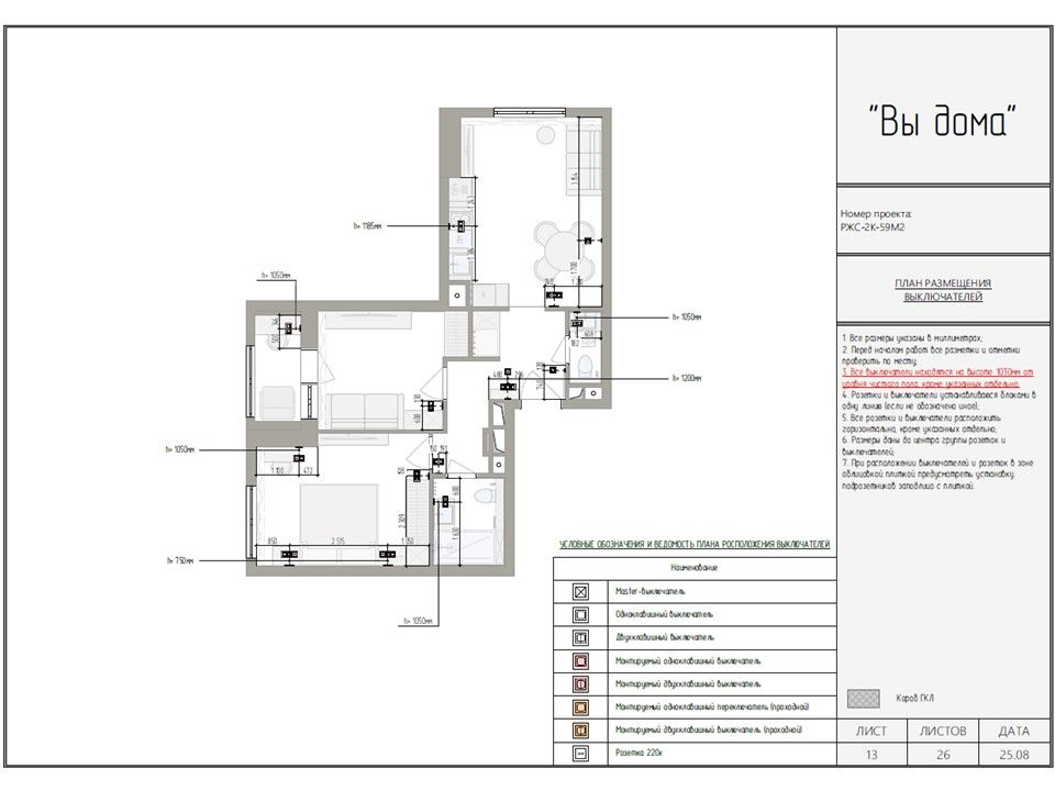
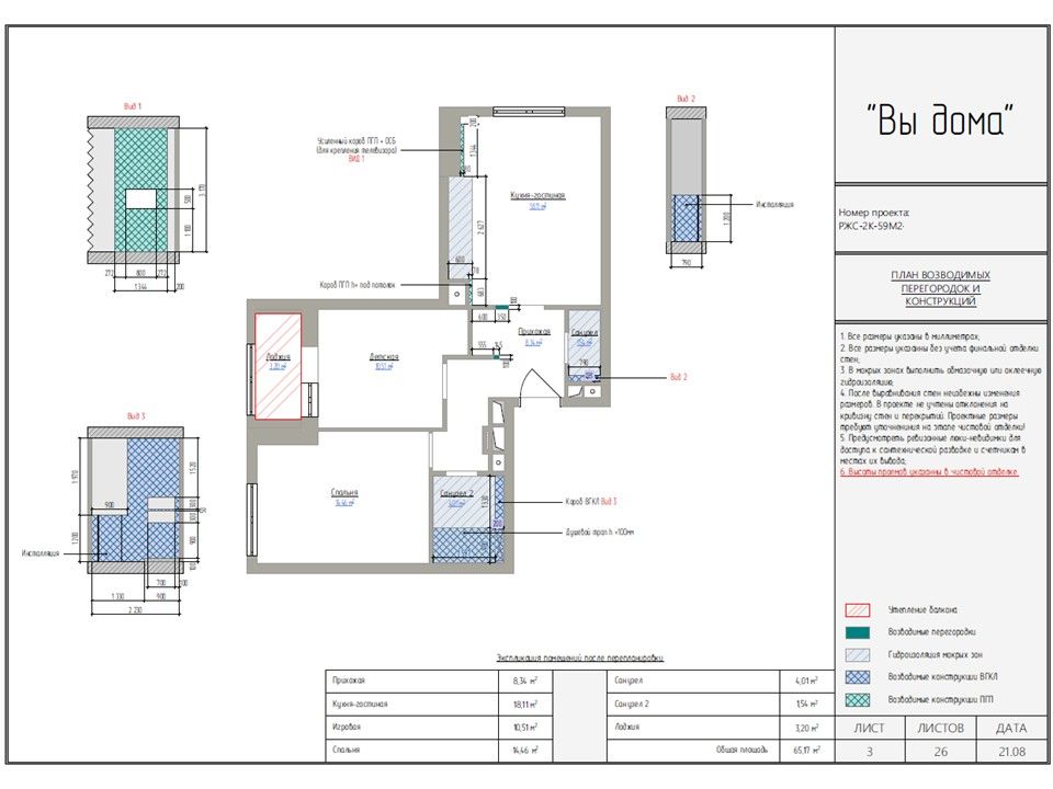
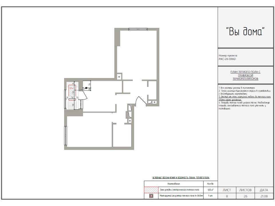
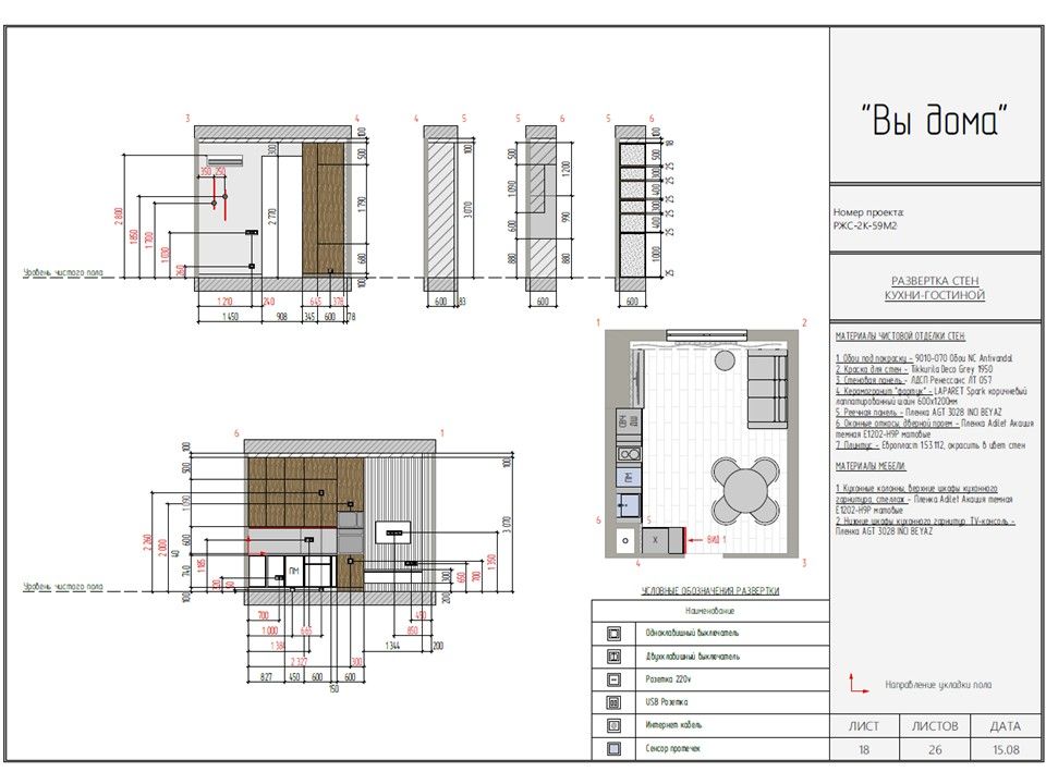
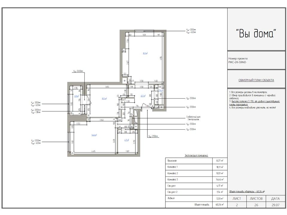
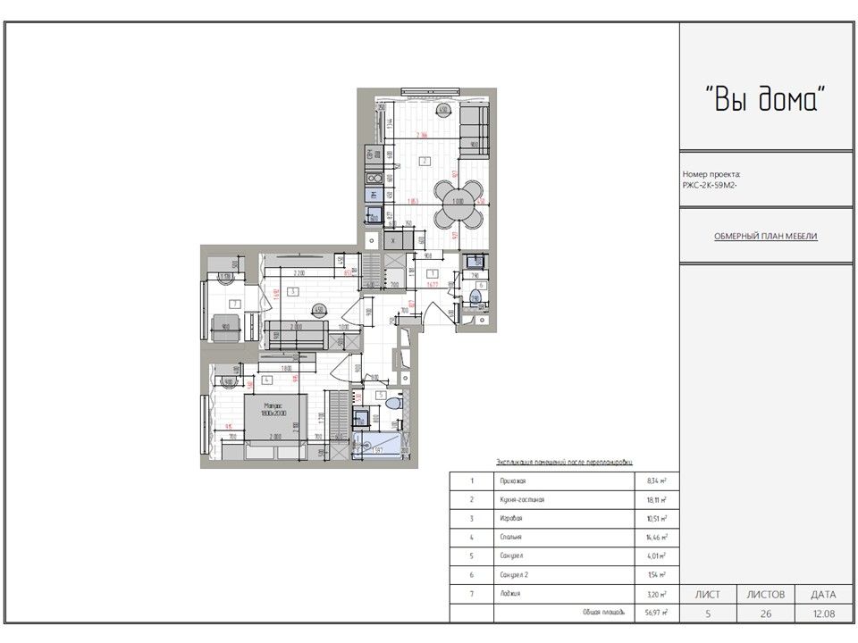
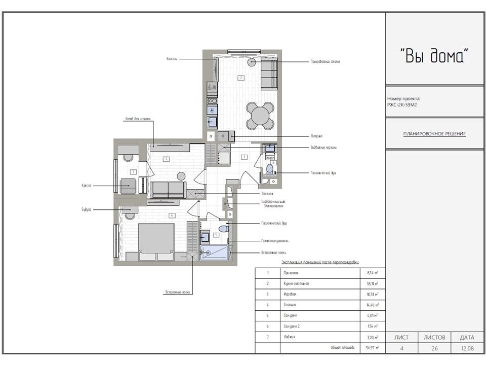
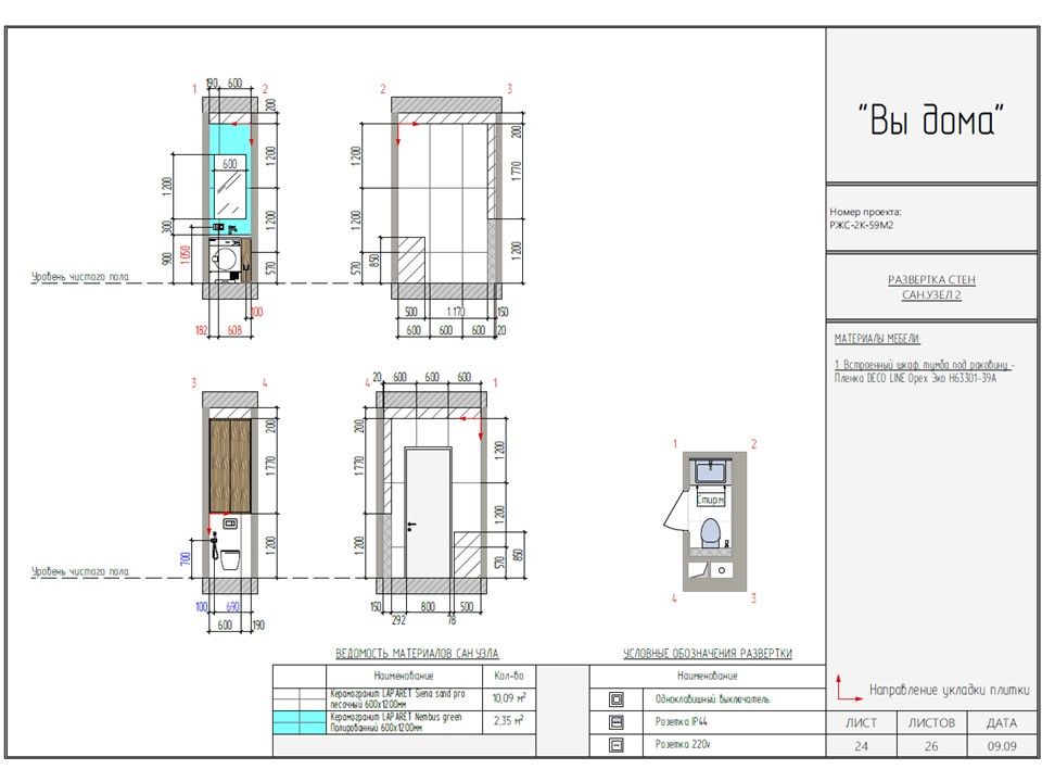
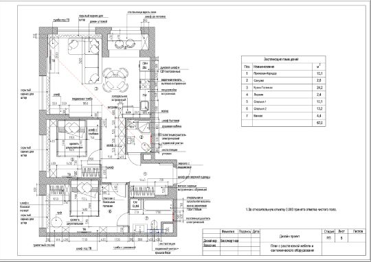
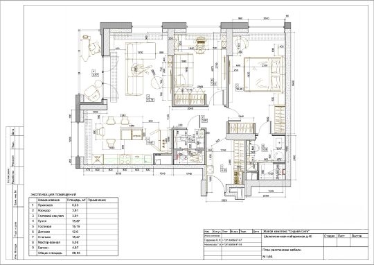
ПРИМЕР: СОСТАВ ДИЗАЙН-ПРОЕКТА В ЛИСТАХ И НАСТРОЕНИИ

Планы, развертки, узлы, ведомости, 3D визуализации, свет и управление, розетки и т.д.
Кликните на лист — полноэкранно. Листайте стрелками.

Когда дизайн можно почувствовать, а не просто посмотреть

Мы создаём короткие видео на основе дизайн-проекта,
чтобы передать ощущение будущего дома — его атмосферу, ритм и характер.
Это помогает ещё до начала реализации понять,
какой будет жизнь в этом пространстве.

🔊 смотрите со звуком

так, как задумывали Именно вы

Авторский дизайн с глубокой и продуманной концепцией или + с внутренней архитектурой мебели или + с личным присутствием автора — три формата, чтобы получить ваш ИНТЕРЬЕР без компромиссов по стилю, функциям и бюджету

АВТОРСКИЙ
2 900 ₽/м²
  • при выходе в ремонт с нами (в течение 1 месяца после выдачи проекта)
  • 5 800 ₽/м² — если ремонт не у нас или пауза > 1 месяца
АВТОРСКИЙ. ВНУТРЕННИЙ ДИЗАЙН МЕБЕЛИ
3 900 ₽/м²
  • при выходе в ремонт с нами (в течение 1 месяца после выдачи проекта)

    7 800₽/м² — если ремонт не у нас или пауза > 1 месяца
АВТОРСКИЙ. РЕЖИССУРА На объекте
8 950 ₽/м²
  • при выходе в ремонт с нами (в течение 3 месяцЕВ после выдачи проекта)

    7 800 ₽/м² — если ремонт не у нас или пауза > 3 месяцев

КАЛЬКУЛЯТОР: 

ДИЗАЙН + ИНЖЕНЕРКА 

Введите площадь, выберите тариф и опции — получайте ориентир бюджета и сроки за минуту 

Посчитать

Проверим расчёт конкурента — за 24 часа

Найдём риски и дадим 2–3 равнозначные альтернативы материалов, чтобы удержать бюджет без потери качества

Проверить

Чем дизайн-проект отличается от инженерного проекта?

Дизайн-проект — про эмоции, вид и удобство.
Определяет что и где будет: планировка, сценарии света, розетки/выключатели на плане, отделочные материалы, мебель, развертки стен, узлы, визуализации, спецификации. По нему строят «как задумано».

Инженерный проект — про как это работает и соответствует нормам.
Определяет как подключить и смонтировать: электрика (группы, мощности, щит), водоснабжение и канализация, отопление, вентиляция и кондиционирование, пожарная безопасность и др. По нему монтажники настраивают системы и проходят согласования.

Дизайн-проект отвечает на «что и где», инженерный — на «как это безопасно и правильно подключить».

---

Когда инженерные разделы нужны обязательно
  • Перенос/добавление мокрых зон, тёплые полы, сложная сантехника.
  • Многоуровневый свет, диммирование, умный дом, увеличение электромощности.
  • Приточно-вытяжная вентиляция, VRF/канальные кондиционеры.
  • Любые работы, которые требуют согласования с УК или затрагивают общедомовые системы.
  • Высотные дома и ЖК бизнес/премиум-класса — как правило, действуют усиленные регламенты по пожарной безопасности, шуму, вентиляции и нагрузкам.
---

Требования управляющих компаний — почему и имеют ли право?
  • УК отвечает за безопасность дома и общих инженерных систем. Поэтому они вправе запрашивать проектную документацию перед началом работ и не допускать монтаж без неё.
  • Это нормальная практика: документы фиксируют соответствие нормам и снижают риски аварий, штрафов и остановки ремонта.
  • Мы относимся к этому уважительно и помогаем пройти все формальности без лишней бюрократии.
---

Как мы помогаем
  • Собираем нужные инженерные разделы под ваш объект.
  • Сверяем решения с регламентами УК, готовим комплект на согласование.
  • Координируем монтаж: у подрядчиков есть понятные чертежи и спецификации.
> Хотите понять, какие разделы понадобятся именно вам?
> Напишите в мессенджер — проверим по вашему ЖК и плану квартиры. 
ПРИМЕРЫ ОТДЕЛКИ ПО АВТОРСКОМУ ДИЗАЙНу

Из проекта — в квартиру

ПОЧЕРК

НАШИ ДИЗАЙНЕРЫ И ИХ РАБОТЫ

Олим и Ольга, 11 лет в дизайне

Настоящий креативный дуэт. Вдохновленные современным городским стилем, они создают концепции с актуальными сочетаниями цветов, фактур и продуманной эргономикой. Их работы — это гармония эстетики и практичности, где каждая деталь подчинена идее удобства и визуальной выразительности. Работа в паре, увеличивает скорость в 1,5 раза. Олим отвечает за концепции и визуализацию, Ольга (архитектор) – за точные чертежи и техническую реализацию.

ЗАБРОНИРОВАТЬ ДИЗАЙНЕРА

Лариса, 19 лет в дизайне

В стиле работ Ларисы присутствует особенный шарм и глубокая практичность - на приемке ее проектов мы слышим восхищенное "вот это да!" от заказчиков. Исходно громоздкое, стало незаметным, а малое превратилось во что-то просторное и удобное. Чистые, простые формы или брутальные темные интерьеры - каждый проект отражает характер и задачи заказчика.

ЗАБРОНИРОВАТЬ ДИЗАЙНЕРА

Николай, 7 лет в дизайне

Николай создает интерьерные концепции, в которых прекрасно сочетаются современные элементы и функциональность. Умелое сочетание элегантности и современных тенденций, создает уникальные интерьеры, которые радуют глаз и приносят комфорт своим обитателям.

ЗАБРОНИРОВАТЬ ДИЗАЙНЕРА

Вероника, 8 лет в дизайне

Вероника создает современные и функциональные интерьеры, сочетая минимализм, неоклассику, скандинавский стили с акцентом на комфорт и эстетичность. Ее сильные стороны — умение грамотно работать с пространством, светом и фактурой, а также внимание к деталям, создающим уют и индивидуальность. Преимущество её подхода в том, что каждый проект гармонично объединяет стиль и практичность, оставаясь актуальным на долгие годы.

ЗАБРОНИРОВАТЬ ДИЗАЙНЕРА

Ирина, 14 лет в дизайне

Ирина проектирует уникальные, яркие пространства, которые продолжают индивидуальность заказчика. Ее работы отличаются смелыми решениями, хорошим чувством стиля и цвета, а также невероятной детализацией. 

ЗАБРОНИРОВАТЬ ДИЗАЙНЕРА

Екатерина, 12 лет в дизайне

Правильный подход и гармоничное сочетание различных элементов - залог успеха стильного и неординарного интерьера, который прослеживается в работах Екатерины. Основа стиля её работы - умение наполнить сложную задачу, эмоцией, свежим воздухом и светом.

ЗАБРОНИРОВАТЬ ДИЗАЙНЕРА

Виолетта, 7 лет в дизайне

Виолетта - это профессионал, который создает трендовые и функциональные интерьеры, следуя последним тенденциям моды и стиля. Подбор отделочных материалов, мебели и декора создаст уникальные и уютные пространства, которые отлично сочетают в себе красоту и практичность, делая каждый дом особенным и комфортным. 

ЗАБРОНИРОВАТЬ ДИЗАЙНЕРА

Искусственный интеллект, 2 года в дизайне 

Совсем другой подход. Сегодня, такой дизайн еще не привязан к точным размерам помещений и наименованиям материалов. Однако, в созданных по задачам заказчиков изображениях, можно получить смелые и неожиданные направления. А уже из них, через подбор реальных материалов с нашим специалистом, создать действительно передовой интерьер.

СДЕЛАТЬ ЗАПРОС РУКОВОДИТЕЛЮ ПРОЕКТОВ
About us

Дизайн — это РЕАЛИЗУЕМАЯ технология, а не картинки и чертежи

Фиксируем цель и бюджетную вилку уже на этапе творческого задания заказчика (ТЗ) и ведём сумму по контрольным точкам — так проект действительно можно построить.

  • ТЗ → рассчитывается вилка (min/target/max).
  • Материалы = якорь: формируем ведомость и ценовые альтернативы.
  • Правило расчёта: работы ≈ материалы (+ логистика).
  • Чек-поинты: эскиз → план → спецификация — подтверждаем сумму на каждом шаге и наличие на пред-производстве.
  • Замены без роста итога: даём 2–3 равнозначные опции с ценой/сроком.
  • Изменения — письменно: отдельной строкой в смете и графике.

ЧАСТЫЕ ВОПРОСЫ


Как цены на работы связаны со стоимостью материалов?

  • Керамогранит крупного формата → сложнее подгонка, выравнивание, аккуратность.
  • Обои/покраска → обычная стена или стена с боковой подсветкой = «в ноль» по плоскости.
  • Розетки → 30 или 60 = вдвое разный объём работы.
  • Светильник → точечный «подключить и всё» или люстра из 100 деталей = день сборки.
  • Санузлы → один или два = разный объём инженерки и плиточных работ.
  • Потолки → натяжные «за день» или гипсокартон многоуровневый со световыми линиями.

Можно сделать ремонт дешевле, чем в примерах реализованных проектов?

Да, можно — за счёт состава и материалов, не за счёт «ухудшения работ». Мы сразу предлагаем равнозначные альтернативы и считаем итог.

Как снизить бюджет без потери результата
  • Материалы = якорь суммы. Выбираем аналоги по виду и ресурсу (плитка, паркет, сантехника) → экономия 10–25%.
  • Стандартизация. Крупноформатная плитка/сложные узлы → на типовые решения и форматы → до 10%.
  • Умные метры. Уменьшаем объём декоративных панелей/молдингов/подсветок там, где это не влияет на идею → 5–15%.
  • Инженерка. Безопасные упрощения (меньше контуров света, стандартные сценарии автоматики) → 5–10%.
  • Этапность. Сначала база (черновые + ключевые комнаты), остальное — второй этап.
  • Готовые решения. Быстрее и дешевле за счёт типовых узлов и проверенной комплектации.
Чего не делаем ради «дешевле»
  • Серые схемы, демпинг работ, «дешёвые бригады без контроля».
  • Решения, которые ломают срок службы, безопасность или гарантию застройщика.
  • Не «прячем не посчитанное» (не делаем расчет без потолков, освещения, дверей, сантехники и т. п., чтобы на середине ремонта неожиданно «вспомнить и добавить» это к смете).
Что дальше
Отправьте метраж и приоритеты — дадим ориентир бюджета и список альтернатив. Рассчитать/ Бронь 8 880 ₽ (в зачёт проекта).

Можно быстрее?

  • Да, если забронировать дизайнера сразу. Уникальный опыт востребован и "завтра" может иметь предельную загрузку.
  • Да, если без кастома и импортных позиций: 5–9 мес. в зависимости от площади квартиры и насыщенности проекта

Как понять опыт и специализацию дизайнера?

  • Смотрим портфолио именно по квартирам схожего класса.
  • Действительно ли дизайн это проект, по которому можно исполнить работы (не коллаж, не красивые картинки).
  • Если у компании только «визуализации», без реальных фото после ремонта — это тревожный знак.
  • Уточняем: делают ли они рабочую документацию, а не только картинки. 

Есть ли у дизайнера понимание по привязке к бюджету?

  • Дизайнер должен уметь работать в заданном бюджете.
  • Правильный ответ на вопрос «а сколько стоит ремонт по вашему проекту?» — это цифры в диапазоне, а не «не знаю, это потом строители скажут».
  • Хорошая практика: смета-ориентир по материалам и работам ещё до визуализаций. 

Как понять уровень проработки в будущем проекте?

  • Используют ли они цифровые инструменты: BIM, Revit, ArchiCAD, хотя бы грамотный AutoCAD + Excel.
  • Есть ли чек-листы по материалам, ведомости, спецификации.
  • Важен не только «красивый рендер», а наличие рабочих узлов и карт раскладки материалов. 
  • Картинка сопоставима с реальными размерами, расположение элементов соответствует чертежам, если есть подсветка, есть и вывод 220 В в чертежах.

Дизайнер - одиночка или команда?

  • Дизайнер-одиночка может быть талантливым, но часто буксует по срокам и технологиям.
  • Рабочий вариант — студия с понятными ролями: дизайнер, визуализатор, комплектатор.
  • Лучший вариант — студия, как подразделение компании со снабжением, производственной командой: закрывает риски. 

Что должно быть в договоре на дизайн?

  • Договор должен включать:
  • - сроки и этапы,
  • - ответственность за ошибки в проекте,
  • - производственный/авторский надзор (нужен или нет).
  • Без договора вы рискуете получить «красивые картинки без реальности». 

Красные флаги в дизайне!

  • «Мы не считаем сметы, мы только про стиль».
  • «Мы сделаем, а строители сами разберутся».
  • Невнятные сроки и этапы.
  • Работают без договора.
  • Дизайн больше похож на коллаж без понятных соотношений, узлов, общей картины.
  • Нет реальных фото реализованных объектов. 

Как выбирать тех, кто создаст мой уникальный интерьер?

  1. Определить бюджет (хотя бы коридор).
  2. Встретиться с 2–3 дизайнерами, студиями или компаниями.
  3. Сравнить: кто лучше понимает задачи, кто даёт ясные цифры и этапы. 
    ________________________________________
    📌 В итоге: правильная компания или дизайнер — это не те, кто «самые дешёвые» или «самые модные», а те, кто понятен и комфортен вам, кто умеет соединить эмоции, стиль, продуманность, бюджет, сроки и реализацию.