ТЕХНИЧЕСКИЙ ДИЗАЙН

КАК ЭТО ВЫГЛЯДИТ


[В]МЕСТЕ подготовим ТЕХНИЧЕСКИЙ ДИЗАЙН-ПРОЕКТ И РАБОЧУЮ ДОКУМЕНТАЦИЮ для понятного сравнения и выбора исполнителя работ, экономии и гарантии итоговой стоимости, соответствия и сроков

СФОРМУЛИРОВАТЬ

ЗАДАЧИ, ГДЕ И ЧТО ДЕЛАТЬ    

  •  для каждого места и помещения
  • количества, расположение узлов, элементов и типов отделки
  • критерии по квалификации исполнителей
понять объемы

ЧТО ВХОДИТ В ПЕРИМЕТР РАБОТ

  • проверить квалификацию РАЗНЫХ исполнителей
  • проверить прозрачность ПРЕДЛОЖЕНИЙ, ВСЕ ЛИ из рабочей документации посчитано
  • СРАВНИТЬ СКОЛЬКО СТОИТ КАЖДЫЙ ВИД РАБОТ И МАТЕРИАЛОВ, ЧТО В СУММЕ 
понять количества

СКОЛЬКО НУЖНО МАТЕРИАЛОВ 

  • ПОЛУЧИТЬ ПОНИМАНИЕ И ПЛАН ДЕЙСТВИЙ
  • ОТКОРРЕКТИРОВАТЬ количество, тип материалов
  • проверить, не влияет ли выбор материала на изменение стоимости работ
ОПРЕДЕЛИТЬ

ПОСЛЕДОВАТЕЛЬНОСТЬ ДЕЙСТВИЙ

  • В КАКОМ ПОРЯДКЕ ВЫПОЛНЯТЬ РАБОТЫ 
  • КАК БУДЕТ ПРОИСХОДИТЬ СНАБЖЕНИЕ 
  • когда и как контролировать РАБОТЫ
  • зафиксировать сроки по указанным объемам работ
ПРИНЯТЬ РЕШЕНИЕ

ПО ИСПОЛНИТЕЛЮ РАБОТ

  • выбрать понятное и окончательное предложение
  • ЗАКРЕПИТЬ СТОИМОСТЬ работ до предоплаты и подписания договора
  • закрепить количества материалов до предоплаты
ПОЛУЧИТЬ 

100% СКИДКУ И ЭКОНОМИЮ

  • ВКЛЮЧИТЬ 100% стоимости рабочей документации в черновые работы*
  • или вернуть 100% стоимости за рабочую документацию, если нашли исполнителя дешевле** 
  • получить защиту от перерасхода материалов от 150 000
     
КОНТРОЛИРОВАТЬ

РАСХОД И СООТВЕТСТВИЕ

  • видеть итоговое соответствие расхода материалов
  • видеть СООТВЕТСТВИЕ по количеству узлов, КАЧЕСТВу И РАСПОЛОЖЕНИЮ всех элементов ремонта
  • обеспечить ОТСУТСТВИЕ "неожиданных" дополнительных работ и переделок со стороны исполнителя
ОСУЩЕСТВИТЬ

ПРИЕМКУ

  • ПО КОНКРЕТНОМУ ПЛАНУ расстановки и монтажа
  • ПО предметному перечню, наименованиям и количествам
  • в оговоренные сроки

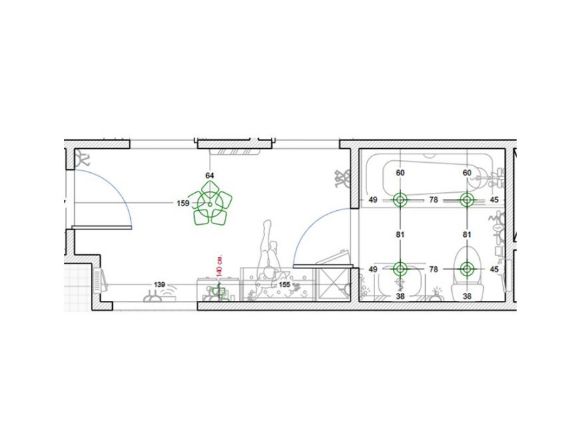
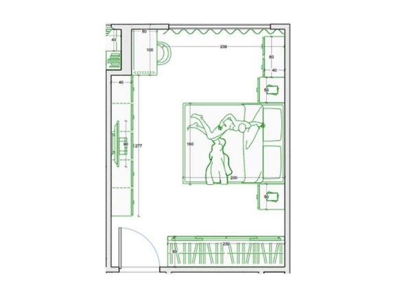
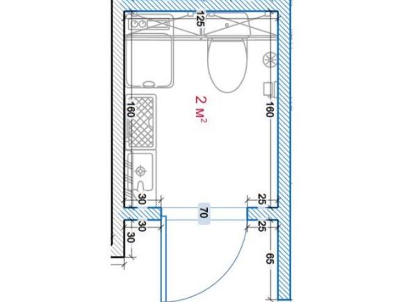
ЧТО ВХОДИТ В КОМПЛЕКТ


  • исходный план по замерам
  • план демонтажа
  • расстановка межкомнатных перегородок
  • план помещений
  • отопление
  • мебель
  • сантехника
  • водоснабжение и канализация
  • розетки
  • освещение
  • выключатели
  • теплые полы
  • кондиционеры
  • напольные покрытия
  • отделка стен
  • отделка потолков
  • гидроизоляция
  • звукоизоляция
  • штукатурка
  • стяжка пола

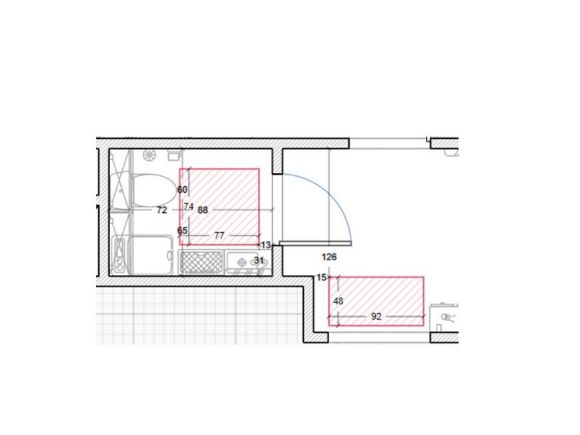
  • площади укладки напольных покрытий
  • периметры с учетом проемов по полу
  • периметры по потолку
  • площади отделки стен с учетом проемов 
  • метраж подоконников
  • метраж оконных откосов
  • количество дверных проемов 
  • количество осветительных приборов
  • длина линейных осветительных приборов
  • количество розеток и выключателей
  • количество сантехнических приборов
  • площадь укладки теплого пола
  • количество терморегуляторов теплого пола  

  • вспомогательные материалы
  • общестроительные материалы
  • комплектующие
  • сантехника
  • материалы для электромонтажных работ
  • изоляционные материалы
  • материалы для плиточных работ
  • сантехника
  • перегородки и комплектующие

  • итоговая смета по работам чернового этапа
    итоговая смета по материалам чернового этапа
    фиксированная, не наращиваемая стоимость

ТАРИФЫ ПО ТЕХНИЧЕСКИМ ДИЗАЙН-ПРОЕКТАМ и РАБОЧЕЙ ДОКУМЕНТАЦИИ

РД 1-комнатная
до 42 кв.м.

16 800 р.
4 рабочих дня после замеров

  • подготовить файл с планировкой или экспликацией
  • договориться о встрече или передать ключ
  • описать пожелания по расположению перегородок, расстановке мебели, сантехники, бытовых приборов
  • оплатить бронь 8 880 р.
РД 2-комнатная
до 60 кв.м.

24 000 р.
4 рабочих дня после замеров

  • подготовить файл с планировкой или экспликацией
  • договориться о встрече или передать ключ
  • описать пожелания по расположению перегородок, расстановке мебели, сантехники, бытовых приборов
  • оплатить бронь 8 880 р.
РД 3-комнатная
до 100 кв.м.

40 000 р.
4 рабочих дня после замеров

  • подготовить файл с планировкой или экспликацией
  • договориться о встрече или передать ключ
  • описать пожелания по расположению перегородок, расстановке мебели, сантехники, бытовых приборов
  • оплатить бронь 8 880 р.

ВЕРНЕМ СТОИМОСТЬ

  • * ПРИ ПОДПИСАНИИ И ОПЛАТЕ ЧЕРНОВОГО ДОГОВОРА
  • ** ПРИ ПОДТВЕРЖДЕНИИ ОРИГИНАЛАМИ ФИСКАЛЬНЫХ ЧЕКОВ ОБ ОПЛАТЕ, АКТА ПРИЕМКИ РАБОТ И ПОДПИСАННОЙ СМЕТЫ ДРУГОЙ КОМПАНИИ-ИСПОЛНИТЕЛЯ, ИДЕНТИЧНОЙ ПО НАПОЛНЕНИЮ НАШЕЙ СМЕТЕ ПО РАБОТАМ И МАТЕРИАЛАМ